Lokale A1, A2 pow. 116 m2 677 080 zł Osiedle "Polski Dom" w Górach
Data publikacji: |
Rozpoczęliśmy naszą inwestycję w Górach w Płocku od realizacji budynku oznaczonego na planie Osiedla jako A1 - A3. W ramach tego budynku przedstawiamy rzuty oraz ceny i dostępność lokali A1 oraz A2.
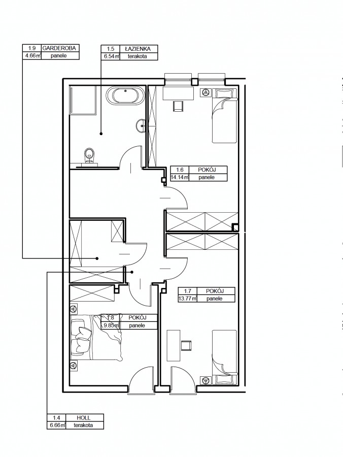
Lokal A1
Pow. 116 m2
Pow. działki 301 m2
Termin zakończenia prac: wiosna 2027 r.
Cena: 689 615 zł
|
|
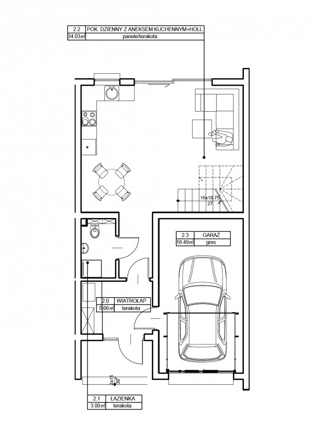
Lokal A2
Pow. 116 m2
Pow. działki 192 m2
Termin zakończenia prac: wiosna 2027 r.
Cena: 677 080 zł
|
|




