Lokal A3-A6
Data publikacji: |Prezentujemy rzuty oraz informacje dotyczące lokali A3 - A6 na naszym Osiedlu "Polski Dom" w Górach w Płocku.

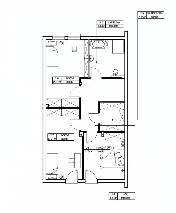
Lokal A4
Pow. 120 m2
Pow. działki 317 m2
Termin zakończenia prac: lato 2027 r.
Cena: 708 030 zł
|
|
Lokal A5
Pow. 120 m2
Pow. działki 198 m2
Termin zakończenia prac: lato 2027 r.
Cena: 693 770 zł
|
|
Lokal A6
Pow. 120 m2
Pow. działki 322 m2
Termin zakończenia prac: lato 2027 r.
Cena: 723 030 zł
|
|






